앨라배마 주 의사당 건축공사의 초기 단계가 진행 중이다.
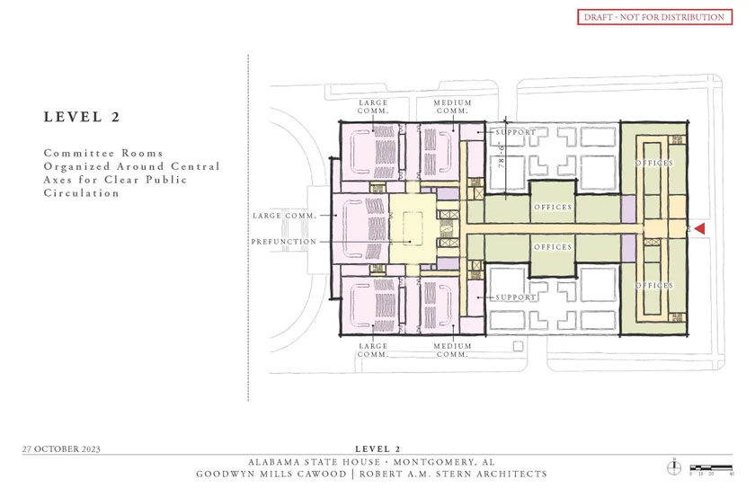
최든 하원과 상원의원들은 새 시설의 외부 디자인, 2층의 대규모 위원회 공간 배치, 상·하원 회의실이 들어설 5층을 보여주는 사진과 도면 2개를 받았다.

현재의 앨라배마 주 의사당을 대체하는 이 공사는 수년에 걸친 작업이다.
앨라배마 주 상원 비서실장 팻 해리스(Pat Harris)는 “예상 비용은 말씀드릴 수 없다”며 “자금에 관한 한, RSA가 이 프로젝트에 자금을 지원하고 있으며, 앨라배마 은퇴 시스템인 RSA와 새 건물 건설에 필요한 자금을 지원하기로 합의했다”라고 말했다.
앨라배마 주 의회의 새 청사는 현재 주 의사당 뒤편 주차장으로 사용되고 있는 부지에 들어설 예정이다. 이제 추진 승인이 내려졌으므로 부지 공사가 즉시 시작되고 2024년 초에 기초 공사가 시작되어 3년 안에 완공될 것으로 예상된다.
1960년대에 주 고속도로 부서의 청사로 지어진 현재의 주 의사당은 1985년 의사당 보수 공사로 인해 일시적으로 의사당을 떠나면서 입법부의 청사가 되었다.
수년에 걸쳐 이 건물은 과밀 문제와 더불어 곰팡이 및 기타 문제로 골머리를 앓고 있었다고 WSFA12 뉴스는 전했다.






